г. Минск ул. Якубова 10, ком. 3а

Время работы: с 10:00 до 20:00

+375 44 749 40 60

Строительство и ремонт

+375 29 770 03 49

Архитектура и дизайн

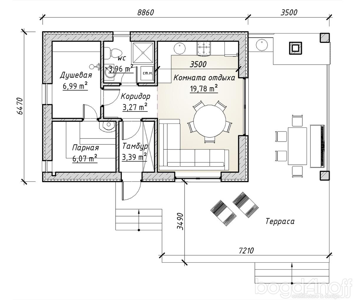
Б-31. Банный комплекс р 12,45*6.5 с террасой
Цена строительства от: 94 000 BYN
12,45*6.5 метров Размеры
58 Площадь (м2)
1 сан-узел+ 1 душевая
1 комната отдыха
Срок строительства: до 4 месяцев
Описание

СТОИМОСТЬ СТРОИТЕЛЬСТВА  «КОРОБКИ» = 94  000 бел рублей

В стоимость строительства входит: АР (архитектурный проект) КР (фундамент, стены, кровля)   фундамент (геология)   , ввод  и разводка канализации, бетонные черновые полы 100 мм, водопровод (гильза) , электроэнергия (гильза) ,   наружные стены из газосиликатного  блока (300мм)   внутренние и перегородки (120мм) , Крыша металлочерепица «Монтерей» 0,5 мм, деревянные балки перекрытие 200 мм с утеплением 200 мм. Утепление фасада 50 мм  с подготовкой к отделке 

                                                         СТОИМОСТЬ СТРОИТЕЛЬСТВА ПОД ОТДЕЛКУ «ТЕПЛЫЙ КОНТУР» = 157  000 бел рублей

  1. Архитектурный проект. КР (фундамент, стены, кровля)
  2. Строительство фундамента (геология)
  3. Разводка канализации по всей бане, бетонные черновые полы
  4. Гильзы для водопровода и электричества
  5. Наружные стены газосиликатные блоки 300 мм, перегородки 120 мм
  6. Крыша металлочерепица «Монтерей» 0.5 мм
  7. Балки перекрытия 200 мм с утеплением 200 мм
  8. Утепление фасада 50 мм с декоративной отделкой фасада согласно проекта 
  9. Отделка свесов крыши, водосточная система 
  10. Все окна согласно проекта (белые) профиль 70 мм
  11. Оштукатуренные внутренние стены и перегородки
  12. Чистовая стяжка пола
  13. Разводка электричества всего дома ( розетки, выключатели, осветительные приборы-без подключения )
  14. Разводка воды, отопления (теплые полы, радиаторы- без подключения сан тех-посуды

                                          СТОИМОСТЬ СТРОИТЕЛЬСТВА С ОТДЕЛКОЙ ПОД КЛЮЧ = 205 000  бел рублей 

 

Гарантия на выполненные работы 48 месяцев.

Похожие проекты
Б-44 .Банный комплекс . 7.6*6.10  метров Площадь: 39 м2
Б-44 .Банный комплекс . 7.6*6.10 метров
Цена от: 69 000 BYN

1 сан-узел

комната отдыха, душевая, кладовая ,парилка.

Б-52 Банный комплекс со вторым светом  7*15 м. Площадь: 70 м2
Б-52 Банный комплекс со вторым светом 7*15 м.
Цена от: 105 000 BYN

1 сан-узел

душевая, сан-узел, кухня, подсобное помещение, большая зона отдыха

Б-50. Банный комплекс  11,05*7,40 метров Площадь: 78 м2
Б-50. Банный комплекс 11,05*7,40 метров
Цена от: 117 000 BYN

1 сан-узел

комната отдыха, парная.

Б-36. Банный комплекс 19,02 *7,52 метров Площадь: 128 м2
Б-36. Банный комплекс 19,02 *7,52 метров
Цена от: 190 000 BYN

1 сан-узел

большая застекленная веранда, комната отдыха

Заказать консультацию
Нажимая на кнопку, вы даете согласие на обработку своих персональных данных