г. Минск ул. Якубова 10, ком. 3а

Время работы: с 10:00 до 20:00

+375 44 749 40 60

Строительство и ремонт

+375 29 770 03 49

Архитектура и дизайн

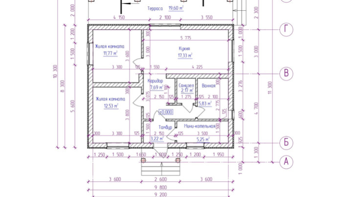
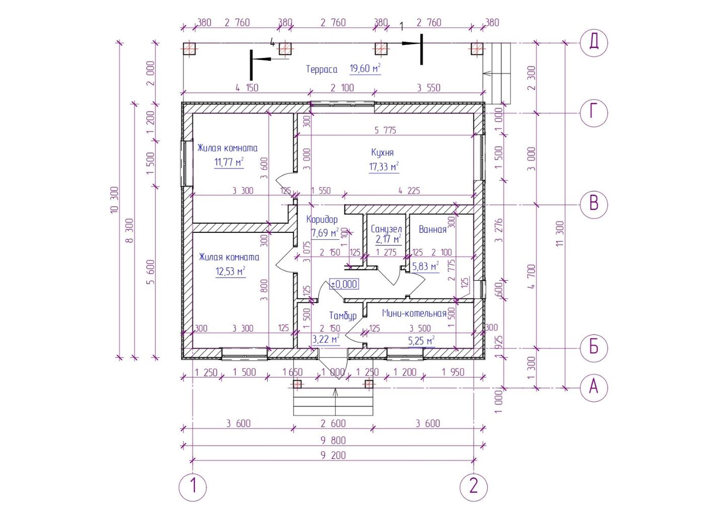
ДК-01 ХИТ-Строительства . Дом с террасой 11.8* 8.30 метров
Цена строительства от: 98 000 BYN
Архитектурный проект: 500 BYN
Строительный проект: 2200 BYN
11.8* 8.30 метров Размеры
79 Площадь (м2)
2 сан-узла
Спальня, гостиная, кухня
Срок строительства: до 3.5 месяцев.
Описание

Индивидуальный проект загородного компактного дома для круглогодичного проживания  . Этот проект разработал наш архитектор и этот проект по праву считается одним из самых удачных и востребованных домов для строительства.

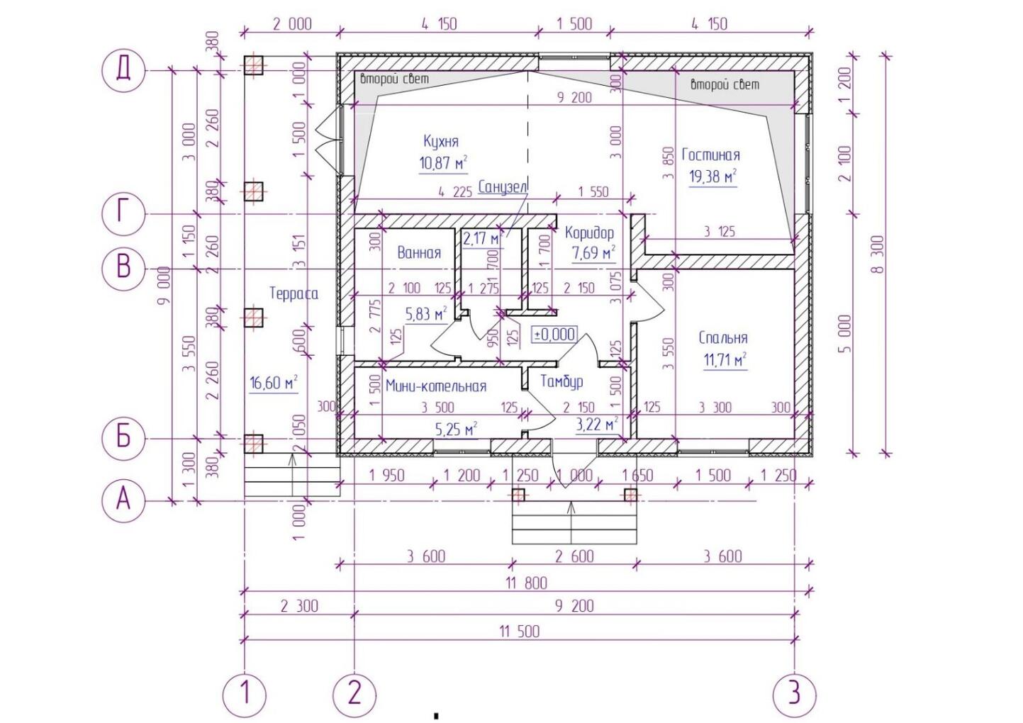
На сегодняшний день идет строительство пяти таких домов по всей Белоруссии  из них два дома по Минскому району  . В одном из проектов по желанию клиента вместо одной комнаты и гостиной мы заменили на две жилых комнаты и кухню при этом стоимость не изменилась.

Также в другом варианте по желанию клиента мы запроектировали подвал по всему периметру здания но в этом варианте стоимость изменяется. 

Если вас заинтересовал данный проект  мы предлагаем приехать на обьект и все увидеть своими глазами.

В стоимость строительства входит: АР (архитектурный проект) ,  фундамент, ввод и разводка канализации, ввод (гильзы) водопровод -электроэнергия, бетонные черновые полы100мм,  наружные стены из газосиликатного  блока (300мм) ,   внутренние   перегородки (120мм)  , деревянные столбы, крыша,  метало-  черепица толщина металла 0,5 мм , межэтажное перекрытие деревянные балки 200мм с утеплением 

Стоимость строительства коробки = 98 000 бел рублей

Стоимость строительства с отделкой под ключ = 229 000 бел рублей

Гарантия на выполненные работы 48 месяцев.

Похожие проекты
Под отделку  МК-01  Одноэтажный дом  9.8*8.3  метров Площадь: .63 м2
Под отделку МК-01 Одноэтажный дом 9.8*8.3 метров
Цена от: 98 000 BYN

1 сан-узел

2 жилых комнаты

Под отделку-.Проект Д-22, размер 12.4* 10.78 метров Площадь: 102 м2
Под отделку-.Проект Д-22, размер 12.4* 10.78 метров
Цена от: 148 000 BYN

2 сан-узла

3 спальни, большая гостиная

К-003. Скандинавский стиль.. Размер 10.94* 11.9 метров. Площадь: 140 м2
К-003. Скандинавский стиль.. Размер 10.94* 11.9 метров.
Цена от: 278 000 BYN

2 сан- узла

4 спальни, большая гостиная

Проект А-1,  размер 10.00 * 13.5 метров Площадь: 113 м2
Проект А-1, размер 10.00 * 13.5 метров
Цена от: 165 000 BYN

2 сан- узел

3 спальни+ гостиная

Заказать консультацию
Нажимая на кнопку, вы даете согласие на обработку своих персональных данных