- Главная
- Услуги
- Проектирование домов, бань и хоз-построек
- Архитектурные проекты частных домов и других капитальных строений
ООО «Строй для всех» сертифицированная и аттестованная организация, это дает право для разработки разделов проектной документации объектов строительства первого –четвертого классов сложности. Строительство объектов первого – четвертого классов сложности.
Оказании инженерных услуг при осуществлении деятельности в области строительства объектов первого – четвертого классов сложности.
Наше архитектурное бюро предоставляет услуги в архитектурном проектировании разного вида сложности:
- индивидуальных загородных жилых домов,
- хозяйственных построек,
- бань, спа-комплесов
- уже построенных домов
- проекты реконструкции
- проекты перепланировки квартир, офисов итд
- 3D визуализация интерьеров и фасадов зданий.
Заказывая проект у нас вы получаете комплект чертежей, который разработан профессиональным архитектором, конструкторам и инженером нашей компании в соответствии со СНиПами, ГОСТами и строительными правилами. Проекты полностью подготовлены для строительства домов с их последующей регистрацией в гос. органах, а также для получения кредитов в банке на строительство дома.
Архитектурный раздел включает в себя :
- Общие характеристики дома
- Цветные фасады
- Черно-белые фасады дома с отметками высот
- Чертежи планов этажей дома
- Разрезы дома в двух ракурсах
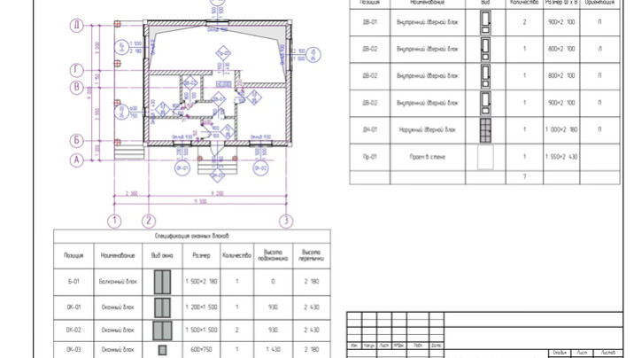
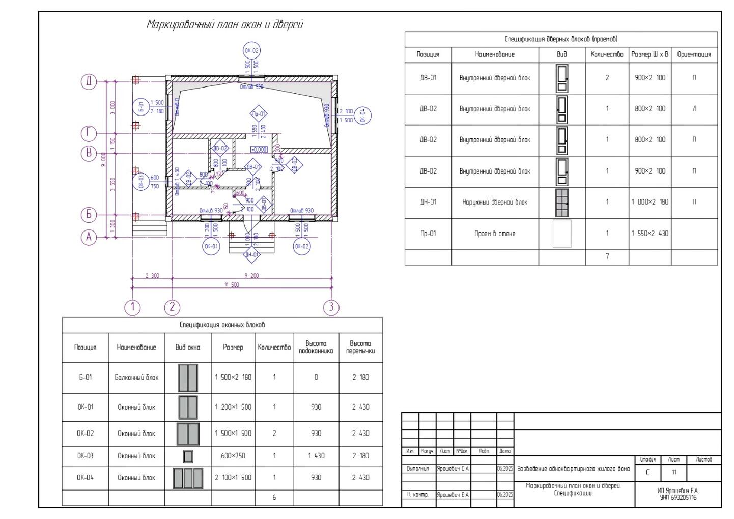
- Ведомость оконных и дверных проемов
Сметная документация
Генеральный план
Согласования






