г. Минск ул. Якубова 10, ком. 3а

Время работы: с 10:00 до 20:00

+375 44 749 40 60

Строительство и ремонт

+375 29 770 03 49

Архитектура и дизайн

Проекты бань, спа-комплексов, хоз-построек
Стоимость услуги от: 700 BYN
Описание

Профессиональное проектирований банных комплексов, СПА-комплексов любой сложности .

Профессиональное строительство банных комплексов, СПА-комплексов любой сложности  по всей территории Республике Беларусь.

Для чего нужен архитектурный проект 

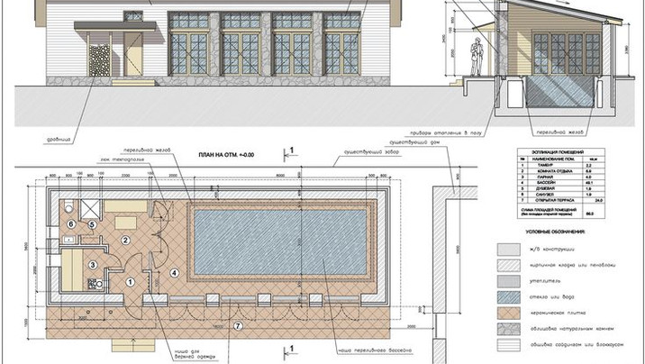
Объемный архитектурный проект  - это полное детализированное представление о вашей будущей бане. Он включает в себя не только объемно-планировочные решения и разработку конструктивных узлов, но и подробную спецификацию строительных и отделочных материалов. Вы будете точно знать  окон и дверей, погонных метров плинтуса, квадратных метров плитки для моечной и т.д.

С такой подробной спецификацией вам будет несложно провести анализ рынка строительных и отделочных материалов, сравнить цены у разных поставщиков, выбрать оптимальные варианты и точно рассчитать бюджет строительства. Строительные бригады не смогут называть вам цифры за покупку материалов «с потолка», пользуясь отсутствием у вас точной информации. 

Зачастую строительные бригады строят бани не так, как нужно вам, а так, как проще, удобнее и привычнее для них. Детализованный архитектурный проект исключает любую подобную «самодеятельность». Если вам говорят, что сделать что-то невозможно, и лучше сделать по-другому, это свидетельствует только о некомпетентности исполнителей. Потому что, как говорилось выше, все проекты прошли испытание практикой.

Мы предлагаем вам сделать индивидуальный проект бани, бани с бассейном или СПА-комплекс и осуществлять технический контроль за правильность строительства и соблюдения всех норм. 

Или наша организация сама построит банный  комплекс -в таком случае вся архитектурно-планируемые решения включая 3D визуализацию  будут для вас бесплатно

Дополнительные услуги
Смета для кредита

Сметная документация

Генеральный план

Генеральный план

Согласования

Согласования

Заказать консультацию
Нажимая на кнопку, вы даете согласие на обработку своих персональных данных